Kerrostalo 2h+k+kh+s+p
Saharisentie 16, Palokka, Jyväskylä
Hinta
123 000 €
Koko
47,50 m²
Vuosi
2006
Tervetuloa Saharisentie 16, Palokan sydämeen!
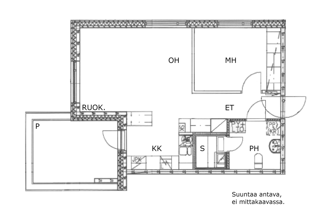
Tämä siistikuntoinen kaksio sijaitsee rauhallisessa ja pidetyssä taloyhtiössä. Asunnossa on toimiva pohjaratkaisu ja reilun kokoinen lasitettu parveke, joka toimii viihtyisänä lisätilana aikaisesta keväästä myöhäiseen syksyyn. Olohuone ja keittiö muodostavat mukavan kokonaisuuden arkeen ja yhdessäoloon. Asunnossa on sauna.
Mahdollisuus ostaa autokatospaikka 6000€.
Palokan kattavat palvelut - kaupat, terveyskeskus ja liikuntamahdollisuudet ovat kävelymatkan päässä. Hyvät kulkuyhteydet mm. Jyväskylän keskustaan tekevät arjesta sujuvaa.
Tämä koti sopii niin omaksi, kuin sijoitukseenkin- mennäänkö katsomaan?
| Kohdenumero | 20761890 |
|---|---|
| Sijainti | Saharisentie 16, 40270 Jyväskylä |
| Omistusmuoto | Oma |
| Huoneistoselitelmä | 2h+k+kh+s+p |
| Huoneita | Kaksio |
| Hallintamuoto | Asunto-osakeyhtiö |
| Tyyppi | Kerrostalo (osake) |
| Asuintilojen pinta-ala | 47,50 m² |
| Kerros | 2/6 |
| Vapautuminen | sopimuksen mukaan |
| Kohteen kunto | Tyydyttävä |
| Energialuokka | D2018. |
| Rakennusvuosi | 2006 |
| Käyttöönottovuosi | 2006 |
| Velaton hinta | 123 000 € |
|---|---|
| Myyntihinta | 123 000 € |
| Velkaosuus | - |
| Vuokrattu | Ei |
| Vastikkeet | |
|---|---|
| Huoneiston yhtiövastike yht | 209 € / kk |
| Hoitovastike | 209 € / kk |
| Muut maksut/lisätietoa maksuista | |
|---|---|
| Autopaikkamaksu | 10 € / kk |
| Vesimaksu | 25,30 € / kk oma mittari |
|---|---|
| Muut maksut | Vesitasaus kylmä 6,50 e/m³ Vesitasaus lämmin 14 e/m³ Taloyhtiöltä vuokrattu autopaikka 10e/kk |
| Lämmitysmuodot |
|
|---|---|
| Oma sauna | Kyllä |
| Hissi | Taloyhtiössä on hissi |
| Parveke | Kyllä |
| Antennijärjestelmä | Kaapeli-tv |
| Tehdyt remontit | Asennettu laminaatti lattiaan. |
| Muu varustelu |
|
|---|
| Katto | |
|---|---|
| Kate | Kumibitumikate |
| Rakennusmateriaalit | |
|---|---|
| Käytetyt rakennusmateriaalit |
|
| Keittiö | |
|---|---|
| Keittiön pöydät |
|
| Keittiön muu varustelu |
|
| Liesi |
|
| Jääkaappi ja pakastin |
|
| Keittiön lattia |
|
| Keittiön seinät |
|
| Kylpyhuone | |
|---|---|
| Kylpyhuoneen varustelu |
|
| Kylpyhuoneen lattia |
|
| Kylpyhuoneen seinät |
|
| Sauna | |
|---|---|
| Kiuas |
|
| Saunan lattia |
|
| Saunan seinät |
|
| Makuuhuone | |
|---|---|
| 1 | |
| Makuuhuoneen lattia |
|
| Makuuhuoneen seinät |
|
| Parveke | |
|---|---|
| Parveke |
|
| Olohuone | |
|---|---|
| Olohuoneen lattia |
|
| Olohuoneen seinät |
|
| Koko | 3 500 m² |
|---|---|
| Omistus | Oma |
| Kaavoitustilanne |
|
| Nimi | As. Oy Jyväskylän maalaiskunnan Rantajoutsen |
|---|---|
| Isännöitsijän tiedot | Oiva Isännöinti Noste Oy / Mikko Vanhanen Alasinkatu 1-3 40320 Jyväskylä |
| Huolto | TL-Maint Oy Pajatie 2 40630 Jyväskylä |
| Tehdyt remontit | 2024 Pääsisäänkäynnin oven automatisointi 2024 Hissin taajuusmuuttajan uusiminen 2024 Palovaroittimien uusiminen 2023 Väestönsuojan käyntioven muutos 2022 Kahden sokkelielementin maalaus 2021 Parvekelasitusten huolto 2019 Elementtisaumat uusittu 2016 Huoneistojen pesuhuoneiden silikonisaumojen uusinta tarvittavilta osin 2015 Sähkökeskuksen määräaikaistarkistus 2015 Ilmanvaihtokanavisto puhdistettu ja säädetty 2015 Salaojien kuvaus 2013 Auto- ja jätekatoksen seinien maalaus 2011 Salaojien kuvaus 2011 Patteritermostaattien, vesikalusteiden ja märkätilojen tarkastus 2011 Lämmityskaapelit vedenpoistoputkiin |
| Tulevat remontit | Huoltokirjan mukaisten kunnossapitotöiden lisäksi toteutetaan - ilmanvaihtokanaviston puhdistus ja säätö (2025) - salaojien kuvaus (2026) - märkätilojen tarkastus (2026) - vesikalusteiden ja patteritermostaattien tarkastus tarvittaessa - asfalttikorjauksia tarvittaessa - kaukolämmön alajakokeskuksen uusiminen (arvio 2029) |
| Taloyhtiön autopaikat |
|
| Huoneistojen lukumäärä | 27 |
| Taloyhtiössä |
|
| Nimi | Enberg Annika |
|---|---|
| Sähköposti | annika.enberg@enberg.com |
| Puhelin | 0504661521 |
| Yrityksen nimi | Kiinteistönvälitys Enberg Oy LKV |
| Toimiston nimi | Kiinteistönvälitys Enberg Oy LKV |
| Yrityksen nimi | Kiinteistönvälitys Enberg Oy LKV |
|---|---|
| Toimiston nimi | Kiinteistönvälitys Enberg Oy LKV |
| Osoite | Asemakatu 10 B, JYVÄSKYLÄ |
| Toimiston puhelin | 0400561272 |
| Toimiston sähköposti | enberg@enberg.com |
