











































Kerrostalo
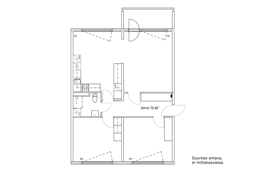
2mh+oh+k+kh+parvekeVisalantie 1, Palokka, Jyväskylä
Hinta
81 000 €
Koko
75 m²
Vuosi
1973
Heti vapaa kerrostalokolmio Palokasta.
Siistikuntoinen asunto, kylpyhuone remontoitu 2016 käyttövesiputkien uusimisen yhteydessä. Keittiö on hyvänkokoinen. Taloyhtiössä on meneillään julkisivuremontti. Asuntoon kohdistuva yhtiölainaosuus tulee olemaan n. 18.000€.
Autopaikalla on sähköauton latausmahdollisuus.
Palokan palvelut lähellä.
Mennäänkö katsomaan?
Kohdenumero | 21881335 |
---|---|
Sijainti | Visalantie 1, 40270 Jyväskylä |
Omistusmuoto | Oma |
Huoneistoselitelmä | 2mh+oh+k+kh+parveke |
Huoneita | Kolmio |
Hallintamuoto | Asunto-osakeyhtiö |
Tyyppi | Kerrostalo (osake) |
Asuintilojen pinta-ala | 75 m² |
Kerros | 1/4 |
Vapautuminen | heti |
Kohteen kunto | Tyydyttävä |
Energialuokka | D2018. |
Rakennusvuosi | 1973 |
Käyttöönottovuosi | 1973 |
Velaton hinta | 81 000 € |
---|---|
Myyntihinta | 81 000 € |
Velkaosuus | - |
Vuokrattu | Ei |
Vastikkeet | |
---|---|
Huoneiston yhtiövastike yht | 315 € / kk |
Hoitovastike | 315 € / kk |
Muut maksut | Kylmä vesi 6,8€/m³ Lämmin vesi 14,00€/m³ |
---|
Lämmitysmuodot |
|
---|---|
Parveke | Kyllä |
Antennijärjestelmä | Antenni |
Tehdyt remontit | Kylpyhuonesaneeraus 2016 |
Auton säilytys | Kahdessa autopaikassa sähköauton latausmahdollisuus. Toinen paikoista on ko. asunnon käytössä. |
Muu varustelu |
|
---|
Katto | |
---|---|
Kate | Pelti |
Rakennusmateriaalit | |
---|---|
Käytetyt rakennusmateriaalit |
|
Keittiö | |
---|---|
Keittiön pöydät |
|
Keittiön muu varustelu |
|
Liesi |
|
Jääkaappi ja pakastin |
|
Keittiön lattia |
|
Keittiön seinät |
|
Kylpyhuone | |
---|---|
Kylpyhuoneen varustelu |
|
Kylpyhuoneen lattia |
|
Kylpyhuoneen seinät |
|
Makuuhuone | |
---|---|
2 | |
Makuuhuoneen lattia |
|
Makuuhuoneen seinät |
|
Parveke | |
---|---|
Parveke |
|
Olohuone | |
---|---|
Olohuoneen lattia |
|
Olohuoneen seinät |
|
Koko | 6 636 m² |
---|---|
Omistus | Oma |
Kaavoitustilanne |
|
Nimi | Asunto Oy Papinpiha |
---|---|
Taloyhtiössä sauna | Kyllä |
Isännöitsijän tiedot | Oiva isännöinti Noste Oy Harri Kuha |
Huolto | SOL Kiinteistöpalvelut Oy |
Tehdyt remontit | 2022 Vesikattojen ja räystäskourujen polyureapinnoitus, kattoluukkujen uusinta ja alipaineventtiilien asennus, tolpallisten pihavalaisimien uusinta 2021 Elementtisaumat uusittu 2019 A-talon kylmiö saneerattu kuntoiluhuoneeksi 2017 Porrashuoneiden lattialaatat uusittu, Pääsisäänkäyntien metalliovien uusinta, 2-talon saunan panelointi ja lauteiden uusinta 2016 Patteriverkoston perussäätö, lämmönvaihdin uusittu, porrashuoneiden ja yhteisten tilojen huoltomaalaus, huoneistojen porrashuoneovien uusinta, käyttövesiputkisaneeraus, ilmanvaihtokanaviston puhdistus ja säätö 2014 Pihasaneeraus 2011 Katolle asennettu kattoturvatuotteet, räystäskourujen sisäkourut uusittu, talojen välinen putkikanaali uusittu 2009 Parvekekatot uusittu 2006 Ikkunat ja parvekeovet uusittu 1996 Linjasäätö ja patteriventtiilit uusittu 1986 Peltikaton maalaus ja yläpohjan eristys |
Tulevat remontit | - Julkisivusaneeraus (menossa) - 2-talon saunaosaston saneeraus - ilmanvaihtokanaviston puhdistus ja säätö |
Taloyhtiön autopaikat |
|
Huoneistojen lukumäärä | 36 |
Taloyhtiössä |
|

Nimi | Enberg Annika |
---|---|
Sähköposti | annika.enberg@enberg.com |
Puhelin | 0504661521 |
Yrityksen nimi | Kiinteistönvälitys Enberg Oy LKV |
Toimiston nimi | Kiinteistönvälitys Enberg Oy LKV |
Yrityksen nimi | Kiinteistönvälitys Enberg Oy LKV |
---|---|
Toimiston nimi | Kiinteistönvälitys Enberg Oy LKV |
Osoite | Asemakatu 10 B, JYVÄSKYLÄ |
Toimiston puhelin | 0400561272 |
Toimiston sähköposti | enberg@enberg.com |