



















































Erillistalo
3-4h+k+sPiispankuja 1, Pellosniemi, Laukaa
Hinta
205 000 €
Koko
92,50 m²
Vuosi
2005
Valoisa ja toimivapohjainen pientalo omalla pihalla!
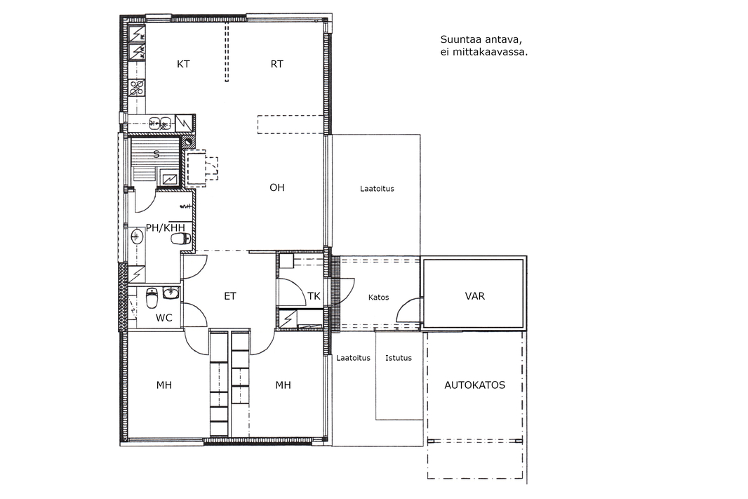
Tervetuloa tutustumaan tähän 92,5 m² kokoiseen, hyväpohjaiseen kotiin! Asunnossa on kaksi makuuhuonetta sekä avara tupakeittiö, jonka yhteydessä on ruokailutila – täydellinen paikka arkeen ja yhdessäoloon. Kodin toimivuutta lisäävät erillinen WC sekä kodinhoitohuoneen ja kylpyhuoneen yhdistelmätila, jossa on myös WC-istuin. Rentoutumista varten löytyy oma sauna.
Sisäänkäynnin yhteydessä on käytännöllinen tuulikaappi sekä eteistila/aula.
Sisääntulon yhteydessä on autokatos ja sen perällä varasto. Pihassa on lisää parkkitilaa. Piha-alue on pääosin nurmetettu ja osin laatoitettu – helppohoitoinen kokonaisuus, joka antaa mahdollisuuksia sekä lasten leikkeihin että aikuisten oleskeluun.
Tämä koti sopii erinomaisesti niin pienelle perheelle, pariskunnalle kuin vaikkapa ensiasunnon ostajalle ja on heti vapaa!
Kohdenumero | 21388867 |
---|---|
Sijainti | Piispankuja 1, 41340 Laukaa |
Omistusmuoto | Oma |
Huoneistoselitelmä | 3-4h+k+s |
Huoneita | 4 h |
Hallintamuoto | Asunto-osakeyhtiö |
Tyyppi | Erillistalo (osake) |
Asuintilojen pinta-ala | 92,50 m² |
Kerros | 1/1 |
Vapautuminen | heti |
Kohteen kunto | Tyydyttävä |
Energialuokka | D2018. |
Rakennusvuosi | 2005 |
Käyttöönottovuosi | 2005 |
Velaton hinta | 205 000 € |
---|---|
Myyntihinta | 205 000 € |
Velkaosuus | - |
Vuokrattu | Ei |
Vastikkeet | |
---|---|
Huoneiston yhtiövastike yht | 366,63 € / kk |
Hoitovastike | 366,63 € / kk |
Vesimaksu | 20 € / kk oma mittari |
---|---|
Muut maksut | Veden perusmaksu 19,16 €/huoneisto, kylmä vesi 5,95 €/m³. Vesiennakko 20 €/hlö/kk (tasaus oman mittarin mukaan). Vesiennakkoa kerätään kulutusarvion mukaan kylmän veden osalta. Vesimaksu tasataan mittarilukemien mukaan marras-/joulukuussa, samanaikaisesti yhtiön vesitasauslaskutuksen kanssa. |
Lämmitysmuodot |
|
---|---|
Oma sauna | Kyllä |
Muut säilytystilat |
|
---|---|
Muu varustelu |
|
Katto | |
---|---|
Kate | Pelti |
Rakennusmateriaalit | |
---|---|
Käytetyt rakennusmateriaalit |
|
Keittiö | |
---|---|
Keittiön pöydät |
|
Keittiön muu varustelu |
|
Liesi |
|
Jääkaappi ja pakastin |
|
Keittiön lattia |
|
Keittiön seinät |
|
Kylpyhuone | |
---|---|
Kylpyhuoneen varustelu |
|
Kylpyhuoneen lattia |
|
Kylpyhuoneen seinät |
|
Sauna | |
---|---|
Kiuas |
|
Saunan lattia |
|
Saunan seinät |
|
Makuuhuone | |
---|---|
2 | |
Makuuhuoneen lattia |
|
Makuuhuoneen seinät |
|
Olohuone | |
---|---|
Olohuoneen lattia |
|
Olohuoneen seinät |
|
Pesutilat | |
---|---|
Pesutilojen lattia |
|
WC-tilat | |
---|---|
WC-tilojen varustelu |
|
WC-tilojen lattia |
|
Koko | 2 175 m² |
---|---|
Omistus | Oma |
Kaavoitustilanne |
|
Ranta |
|
Nimi | Asunto Oy Laukaan Piispanpiha |
---|---|
Isännöitsijän tiedot | Engel Isännöinti Marjo Luoto 0408524725 engelisannointi@gmail.com |
Huolto | Kiinteistönhoito on omatoiminen. |
Tehdyt remontit | - 2012 Huoneistossa 1 A on tapahtunut kesällä 2012 LV-varaajan alla olevan lattiakaivon tukkeutumisesta aiheutunut kosteusvaurio, jonka rakentaja NK-Rakennus on korjannut - 2013 Asunto Oy Laukaan Piispanpiha ja Asunto Oy Laukaan Messuvillat ovat 2013 kesän aikana uusineet raja-aitansa ja parantaneet tonttien rajalla olevaa ojitusta. Kustannukset on jaettu taloyhtiöiden kesken tasan. - 2015 Asuntoihin nouseviin lämpökanaaleihin on tehty ohituslenkit, jotta verkostossa kiertää vesi jatkuvasti huoneistoihin saakka. Lämmitysverkoston virtaamat on laskettu ja säädetty. Lisäksi asuntoihin on asennettu huoneistokohtaiset luentamittarit. - 2016 Ilmanvaihtokanavien puhdistus ja perussäätö - 2017 Varsinaisessa yhtiökokouksessa päätettiin siirtyä harava-antennijärjestelmään - 2018 Ulkopintojen huoltomaalaus - 2020 Peltikattojen läpivientien tiivistyksien tarkastaminen ja kunnostus tarpeellisilta osin - 2023 Uusittu kaikkien asuntojen vesikalusteet. |
Tulevat remontit | - 2025 IV kanavien puhdistus ja säätö |
Huoneistojen lukumäärä | 3 |

Nimi | Laurila Mikko |
---|---|
Sähköposti | mikko.laurila@enberg.com |
Puhelin | 0407490982 |
Yrityksen nimi | Kiinteistönvälitys Enberg Oy LKV |
Toimiston nimi | Kiinteistönvälitys Enberg Oy LKV |
Yrityksen nimi | Kiinteistönvälitys Enberg Oy LKV |
---|---|
Toimiston nimi | Kiinteistönvälitys Enberg Oy LKV |
Osoite | Asemakatu 10 B, JYVÄSKYLÄ |
Toimiston puhelin | 0400561272 |
Toimiston sähköposti | enberg@enberg.com |