

























































Omakotitalo
3mh+oh+k+tkh+apuk+kph+s+wc+2vh+ter+var+autotalliMuuttolantie 13, Jokiniemi, Laukaa
Hinta
145 000 €
Koko
118 m² / 158 m²
Vuosi
1986
Kodikas omakotitalo Jokiniemen perheystävällisellä alueella
Tervetuloa tutustumaan tähän vuonna 1986 valmistuneeseen omakotitaloon, jossa on tilaa ja viihtyisyyttä koko perheelle. Sijainti Laukaan Jokiniemessä on rauhallinen ja arvostettu – ympärillä on vehreää luontoa sekä turvallinen asuinympäristö.
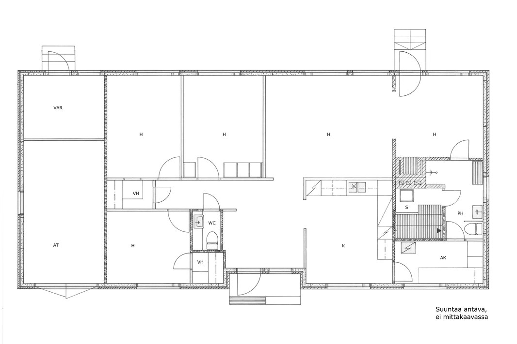
Asuinrakennus 118 m² pitää sisällään toimivan pohjaratkaisun: kolme viihtyisää makuuhuonetta, valoisan olohuoneen, erillisen keittiön, kodikkaan takkahuoneen, käytännöllisen kodinhoitohuoneen, pesuhuoneen, saunan heti valmiilla kiukaalla, erillisen wc:n sekä kaksi vaatehuonetta. Lisäksi talosta löytyy autotalli, varasto sekä katettu terassi, joka kutsuu viettämään kesäpäiviä.
Oma tontti on 1 325 m², ja sen vehreä takapiha tarjoaa runsaasti tilaa lasten leikeille ja oleskelulle. Pihapiiristä löytyvät myös 11 m² puuliiteri/varastorakennus sekä ihastuttava leikkimökki. Nurmialue ja tilava piha antavat mahdollisuuden niin puutarhanhoitoon kuin rentoutumiseen.
Tämä koti yhdistää tilan, toimivuuden ja viihtyisän sijainnin – erinomainen valinta perheelle, joka arvostaa rauhallista asuinaluetta ja omaa pihaa.
Kohdenumero | 21331611 |
---|---|
Sijainti | Muuttolantie 13, 41340 Laukaa |
Huoneistoselitelmä | 3mh+oh+k+tkh+apuk+kph+s+wc+2vh+ter+var+autotalli |
Huoneita | 5 h |
Tyyppi | Omakotitalo (kiinteistö) |
Asuintilojen pinta-ala | 118 m² |
Pinta-alojen lisätiedot | Rakennuslupapiirustuksen mukaan huoneistoala on 118 m² ja kerrosala 158 m². |
Kerroksia | 1 |
Vapautuminen | sopimuksen mukaan |
Kohteen kunto | Tyydyttävä |
Energialuokka | D2018. |
Rakennusvuosi | 1986 |
Käyttöönottovuosi | 1986 |
Velaton hinta | 145 000 € |
---|---|
Myyntihinta | 145 000 € |
Velkaosuus | - |
Vuokrattu | Ei |
Muut maksut/lisätietoa maksuista | |
---|---|
Kiinteistövero | 425,31€ |
Muut maksut | Kiinteistövero 425,31€, sähkönkulutuksen vuosiarvio 16808,10 kWh/vuosi (2024). Jätehuolto ja vesi sopimuksen/kulutuksen mukaan. |
---|
Lämmitys | Sähkö. |
---|---|
Lämmitysmuodot |
|
Oma sauna | Kyllä |
Sähköliittymä siirtyy | Kyllä |
Kuntotarkistus tehty | Kyllä |
Liikenneyhteydet | |
---|---|
Tie perille | Kyllä |
Viemäri |
|
---|---|
Muut säilytystilat |
|
Muu varustelu |
|
Tulisija |
|
Vesihuolto |
|
Materiaalit | |
---|---|
Kattomateriaali | Valkoinen paneelikatto |
Katto | |
---|---|
Kate | Pelti |
Rakennusmateriaalit | |
---|---|
Rakennus- ja pintamateriaalien kuvaus | Puurunko, tiiliverhous. |
Käytetyt rakennusmateriaalit |
|
Keittiö | |
---|---|
Keittiön pöydät |
|
Keittiön muu varustelu |
|
Liesi |
|
Jääkaappi ja pakastin |
|
Keittiön lattia |
|
Keittiön seinät |
|
Kylpyhuone | |
---|---|
Kylpyhuoneen varustelu |
|
Kylpyhuoneen lattia |
|
Kylpyhuoneen seinät |
|
Sauna | |
---|---|
Kiuas |
|
Saunan lattia |
|
Saunan seinät |
|
Makuuhuone | |
---|---|
3 | |
Makuuhuoneen lattia |
|
Makuuhuoneen seinät |
|
Olohuone | |
---|---|
Olohuoneen lattia |
|
Olohuoneen seinät |
|
Pesutilat | |
---|---|
Pesutilojen lattia |
|
Pesutilojen seinät |
|
WC-tilat | |
---|---|
WC-tilojen kuvaus | kiinteät kaapistot |
WC-tilojen varustelu |
|
WC-tilojen lattia |
|
WC-tilojen seinät |
|
Rakennusoikeus e-luku | 0.2 |
---|---|
Lisätietoja rakennusoikeudesta | Laukaan kunta |
Koko | 1 325 m² |
Omistus | Oma |
Kaavoitustilanne |
|
Kiinteistötunnus | 410-409-40-102 |
Rakennukset |
|
Ranta |
|
Esittelyaika | 14.09. 15:00 - 15:30 |
---|---|
Esittelijä | Pesonen Jesse |
p. | 0456502132 |
Sähköposti | jesse.pesonen@enberg.com |
ensiesittely |

Nimi | Pesonen Jesse |
---|---|
Sähköposti | jesse.pesonen@enberg.com |
Puhelin | 0456502132 |
Yrityksen nimi | Kiinteistönvälitys Enberg Oy LKV |
Toimiston nimi | Kiinteistönvälitys Enberg Oy LKV |
Yrityksen nimi | Kiinteistönvälitys Enberg Oy LKV |
---|---|
Toimiston nimi | Kiinteistönvälitys Enberg Oy LKV |
Osoite | Asemakatu 10 B, JYVÄSKYLÄ |
Toimiston puhelin | 0400561272 |
Toimiston sähköposti | enberg@enberg.com |