













































Rivitalo
4h+k+kph+khh+s+2x wc+pukuhuonePaloniementie 14, Lohikoski, Jyväskylä
Hinta
169 000 €
Koko
123 m²
Vuosi
1974
Tilava ja toimivapohjainen asunto rauhallisella Paloniemen alueella Lohikoskella.
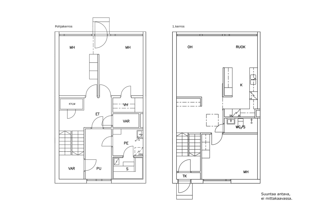
Asunto on pääosin alkuperäiskuntoinen eli erinomainen mahdollisuus päivittää pintojen ja materiaalien osalta oman maun mukaiseksi. Yläkerrassa on valoisa olohuoneen, ruokailutilan ja keittiön kokonaisuus sekä yksi makuuhuone ja wc. Alakerrassa sijaitsevat kaksi makuuhuonetta, saunaosasto pukuhuoneineen sekä kodinhoitotila, josta on käynti ulos. Kaksi wc:tä ja runsaasti säilytystilaa lisäävät asumismukavuutta.
Soita ja sovi oma esittelyaikasi: 050 385 8380 / Pertti
Kohdenumero | 21707559 |
---|---|
Sijainti | Paloniementie 14, 40200 Jyväskylä |
Omistusmuoto | Oma |
Huoneistoselitelmä | 4h+k+kph+khh+s+2x wc+pukuhuone |
Huoneita | 4 h |
Hallintamuoto | Asunto-osakeyhtiö |
Tyyppi | Rivitalo (osake) |
Asuintilojen pinta-ala | 123 m² |
Pinta-alojen lisätiedot | Yhtiöjärjestyksen mukainen pinta-ala 108 m². |
Kerros | 1-2/2 |
Vapautuminen | heti |
Kohteen kunto | Tyydyttävä |
Energialuokka | E2013. |
Rakennusvuosi | 1974 |
Käyttöönottovuosi | 1974 |
Velaton hinta | 169 000 € |
---|---|
Myyntihinta | 169 000 € |
Velkaosuus | - |
Vuokrattu | Ei |
Vastikkeet | |
---|---|
Huoneiston yhtiövastike yht | 418,20 € / kk |
Hoitovastike | 418,20 € / kk |
Vesimaksu | 20 € / kk oma mittari |
---|---|
Muut maksut | Vesimaksuennakko 20 €/hlö/kk, kulutus oman mittarin mukaan. Kylmävesitasaus 7,80 €/m³ Lämminvesitasaus 13,45 €/m³ |
Lämmitysmuodot |
|
---|---|
Oma sauna | Kyllä |
Tehdyt remontit | Keittiö uusittu 2000-luvun alussa. |
Säilytystilojen kuvaus | Lämmin häkkivarasto ja pyörävarasto |
---|---|
Muu varustelu |
|
Katto | |
---|---|
Kate | Huopa |
Rakennusmateriaalit | |
---|---|
Käytetyt rakennusmateriaalit |
|
Keittiö | |
---|---|
Keittiön varustelu | Sauvaparkettilattia, levykatto |
Keittiön muu varustelu |
|
Liesi |
|
Jääkaappi ja pakastin |
|
Keittiön lattia |
|
Kylpyhuone | |
---|---|
Kylpyhuoneen varustelu |
|
Kylpyhuoneen lattia |
|
Kylpyhuoneen seinät |
|
Sauna | |
---|---|
Kiuas |
|
Saunan lattia |
|
Saunan seinät |
|
Olohuone | |
---|---|
Olohuoneen lattia |
|
Olohuoneen seinät |
|
WC-tilat | |
---|---|
WC-tilojen lattia |
|
WC-tilojen seinät |
|
Koko | 2 700 m² |
---|---|
Omistus | Oma |
Kaavoitustilanne |
|
Nimi | Asunto Oy Palotasku |
---|---|
Isännöitsijän tiedot | Oiva Isännöinti Noste O Kari Kallio 0447372162 |
Huolto | 360 Palvelut Oy Laukaantie 4 40320 Jyväskylä |
Tehdyt remontit | 2025 IV-kanavien puhdistus ja ilmamäärien säätö 2025 Palovaroittimien uusinta 2024 Huoneistojen ja yleisten tilojen sekä autotallien ovien ja lukituksen uusiminen 2023 Ulkoaitojen kunnostus ja ulkoseinäpaneelien vaihto 2023 Jätevesipumpun vaihto 2021 C 12 - Alakerran märkätilan kosteusvauriokorjaus 2021 Asuntojen 1-5 kattoikkunoiden korjaukset/tiivistykset 2021 Jätevesipumppaamon moottorien uusiminen 2020 B 9 ja B 7 -Vesivuotokorjaus 2019 Lämmönjakohuonelaitteiston korjauksia 2019 Vesivahinkojen korjaus huoneistossa 7, 8 ja 9 2018 Loppujen lattiakaivojen pinnoitukset 2018 C 12 huoneiston vuodon korjaus 2017 Lattiakaivojen pinnoitukset 2016 B ja C Talojen maalaus 2016 Käyttövesijohtosaneeraus 2016 Jätevesipumppaamon uusiminen 2015 B- ja C-talon katteen uusinta 2013 A-talon katteen uusinta 2012 Kuntotutkimus käyttövesiputkisto 2012 Ilmanvaihdon puhdistus ja säätö 2012 Kuntoarvio katteista 2009 Kuntoarvio 2007 C-talon edustan pihan korjaus 2007 Liittyminen kaukolämpöön ja patteriverkoston tasapainotus 2004 Parvekelasit Rak C 1998 Ikkunoiden uusinta 1996 Seinäp.ositt. lisäeriste |
Tulevat remontit | Hallituksen selvitys kunnossapitotarpeista vuosille 2025 -2029: - Lämmitysverkoston perussaatö - Viemäreiden kuntotutkimus ja mahdollinen puulaus - Julkisivujen peltiosien pesu / vaihto tarvittaessa |
Taloyhtiössä |
|

Nimi | Jääskeläinen Pertti |
---|---|
Sähköposti | pertti.jaaskelainen@enberg.com |
Puhelin | 0503858380 |
Yrityksen nimi | Kiinteistönvälitys Enberg Oy LKV |
Toimiston nimi | Kiinteistönvälitys Enberg Oy LKV |
Yrityksen nimi | Kiinteistönvälitys Enberg Oy LKV |
---|---|
Toimiston nimi | Kiinteistönvälitys Enberg Oy LKV |
Osoite | Asemakatu 10 B, JYVÄSKYLÄ |
Toimiston puhelin | 0400561272 |
Toimiston sähköposti | enberg@enberg.com |