Kerrostalo 4h+k+rt+kph+parveke
Vaasankatu 9, Keskusta, Jyväskylä
Hinta
239 000 €
Koko
94 m²
Vuosi
1960
Valoisa ja tyylikäs koti Jyväskylän sydämessä
Etsitkö tilavaa ja huolella pidettyä kotia erinomaisella sijainnilla? Tämä neljännen kerroksen huoneisto tarjoaa modernia asumista ja upeita näkymiä aivan yliopiston kampuksen ja keskustan palveluiden välittömässä läheisyydessä.
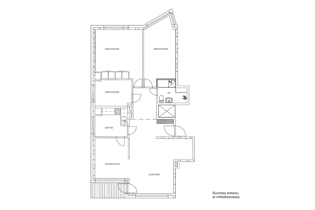
Asunnossa on kolme makuuhuonetta, olohuone ja keittiö, lisäksi erillinen ruokailutila tuo ripauksen arjen luksusta ja tilaa yhteisille illallisille.
Vuonna 2021 täysin remontoitu kylpyhuone on toteutettu tyylikkäillä materiaaleilla – täällä silmä lepää.
Neljännen kerroksen korkeus ja olohuoneen suuret ikkunat takaavat hienot, avarat näkymät, jotka tuovat kotiin runsaasti luonnonvaloa. Lasitettu parveke lisää asuinmukavuutta ja paikan nauttia ulkoilmasta omassa rauhassa.
Asunto Oy Jyväskylän Vaasankatu 9 on rauhallinen ja viihtyisä taloyhtiö, vaikka ollaankin aivan kaupungin ytimessä. Kävelymatkan päästä löytyvät niin Lounaispuiston tunnelma, yliopiston kirjasto kuin keskustan kattavat palvelutkin. Yhtiössä on tehty kattavasti remontteja mm. linjasaneeraus, hissin uudistaminen, kattoremontti ja siirtyminen maalämpöön.
Tämä on täydellinen valinta sinulle, joka arvostat urbaania elämää, mutta haluat kodiltasi rauhaa ja tilaa hengittää.
Ota yhteyttä ja mennään katsomaan.
| Kohdenumero | 20141536 |
|---|---|
| Sijainti | Vaasankatu 9, 40100 Jyväskylä |
| Omistusmuoto | Oma |
| Huoneistoselitelmä | 4h+k+rt+kph+parveke |
| Huoneita | 4 h |
| Hallintamuoto | Asunto-osakeyhtiö |
| Tyyppi | Kerrostalo (osake) |
| Asuintilojen pinta-ala | 94 m² |
| Kerros | 4/5 |
| Vapautuminen | sopimuksen mukaan |
| Kunto | Asuntoon on tehty laaja pintaremontti 2012 ja kylpyhuone on remontoitu 2021. |
| Kohteen kunto | Hyvä |
| Energialuokka | D2018. |
| Rakennusvuosi | 1960 |
| Käyttöönottovuosi | 1960 |
| Velaton hinta | 239 000 € |
|---|---|
| Myyntihinta | 227 730,05 € |
| Velkaosuus | 11 269,95 € |
| Vuokrattu | Ei |
| Vastikkeet | |
|---|---|
| Huoneiston yhtiövastike yht | 607,24 € / kk |
| Rahoitusvastike | 137,24 € / kk |
| Hoitovastike | 470 € / kk |
| Muut maksut/lisätietoa maksuista | |
|---|---|
| Autopaikkamaksu | 30 € / kk |
| Saunamaksu | 15 € / kk |
|---|---|
| Vesimaksu | 25 € / kk oma mittari |
| Muut maksut | Vesi kulutuksen mukaan: Kylmävesivastike 8,5€/m³ Lämminvesivastike 14€/m³ |
| Lämmitysmuodot |
|
|---|---|
| Hissi | Taloyhtiössä on hissi |
| Parveke | Kyllä |
| Antennijärjestelmä | Kaapeli-tv |
| Tehdyt remontit | Kylpyhuone 2021 |
| Muut säilytystilat |
|
|---|---|
| Muu varustelu |
|
| Tulisija |
|
| Katto | |
|---|---|
| Kate | Pelti |
| Rakennusmateriaalit | |
|---|---|
| Käytetyt rakennusmateriaalit |
|
| Keittiö | |
|---|---|
| Keittiön varustelu | Keittiön lattiaan asennettu vinyylilankku 2026. |
| Keittiön pöydät |
|
| Keittiön muu varustelu |
|
| Liesi |
|
| Jääkaappi ja pakastin |
|
| Keittiön lattia |
|
| Keittiön seinät |
|
| Kylpyhuone | |
|---|---|
| Kylpyhuoneen varustelu |
|
| Kylpyhuoneen lattia |
|
| Kylpyhuoneen seinät |
|
| Makuuhuone | |
|---|---|
| 3 | |
| Makuuhuoneen lattia |
|
| Makuuhuoneen seinät |
|
| Parveke | |
|---|---|
| Parveke |
|
| Olohuone | |
|---|---|
| Olohuoneen lattia |
|
| Olohuoneen seinät |
|
| Koko | 1 411 m² |
|---|---|
| Omistus | Oma |
| Kaavoitustilanne |
|
| Nimi | Asunto Oy Jyväskylän Vaasankatu 9 |
|---|---|
| Taloyhtiössä sauna | Kyllä |
| Isännöitsijän tiedot | Jyväskylän Kiinteistöpalvelu Oy Jari Mäkelä 0107786723 |
| Huolto | Huoltoyhtiö |
| Tehdyt remontit | 2000–2001 Julkisivuremontti ja ikkunoiden uusiminen 2004–2005 Putkiremontti vaihe 1 2006–2007 Putkiremontti vaihe 2 2009 Putkiremontti vaihe 3, linjasäätöventtiilit ja patteritermostaattien asennus 2010 Porraskäytävien maalaus 2010 Lukkojen uudelleen sarjoitus Abloy Exec-sarjaan 2010 Vaakakourut korjattu ikikourumenetelmällä, syöksytorvet uusittu ja vesivuotovahinko 2013 Autolämmityspistorasioiden uudistaminen ja lisääminen 2013 Postiluukkujen suurentaminen 2014 Ilmanvaihdon lämmöntalteenottolaitteiston asennuttaminen 2014 Lämpimän käyttöveden kiertopumpun uusiminen 2015 Sähkönousujen ja jakotaulujen uusiminen, antenniverkko 2015–2016 Hissin uudistaminen 2015–2016 Talon pääoven uusiminen 2016 Turvakameran asentaminen talolle 2017 Talon ja autotallien välisen lämmitysputkiston uusinta 2018 Ulkovalaisimien asennuttaminen 2019 Maalämpöön siirtyminen 2019 Lisävalaistuksen asentaminen piha-alueelle 2019 Saunan löylyhuoneen panelointi ja uudet lauteet 2021 Autotallirakennuksen sokkelin ja rapattujen osien huoltomaalaus 2024 Takaovi vaihdettu uuteen alumiiniseen oveen 2025 Vesikaton peltikate, kattoturvatuotteet, sekä rännilämmitykset uusittiin. Pääsisäänkäynnin lipan sekä Vaasankadun puoleisten erkkereiden (3kpl) katteet uusittiin. Väestönsuojan poistumiskuilun peltilippa uusittiin. 2025 Ullakolle, kellariin ja autotallirakennukseen uusittiin alkuperäisiä ikkunoita yhteensä 9 kappaletta, joita ei oltu uusittu ikkunaremontin yhteydessä. |
| Tulevat remontit | - Saunan pukuhuoneiden kunnostaminen - Jäteaseman uudistaminen (piharemontin yhteydessä) - Piharemontti (sisältäen salaojajärjestelmän ja sadevesien ohjaus) - Autotallirakennuksen kattokaiteiden kunnostus tai uusiminen |
| Taloyhtiön autopaikat |
|
| Huoneistojen lukumäärä | 34 |
| Taloyhtiössä |
|
| Esittelyaika | 07.04. 17:00 - 17:30 |
|---|---|
| Esittelijä | Enberg Annika |
| p. | 0504661521 |
| Sähköposti | annika.enberg@enberg.com |
| yleisesittely |
| Nimi | Enberg Annika |
|---|---|
| Sähköposti | annika.enberg@enberg.com |
| Puhelin | 0504661521 |
| Yrityksen nimi | Kiinteistönvälitys Enberg Oy LKV |
| Toimiston nimi | Kiinteistönvälitys Enberg Oy LKV |
| Yrityksen nimi | Kiinteistönvälitys Enberg Oy LKV |
|---|---|
| Toimiston nimi | Kiinteistönvälitys Enberg Oy LKV |
| Osoite | Asemakatu 10 B, JYVÄSKYLÄ |
| Toimiston puhelin | 0400561272 |
| Toimiston sähköposti | enberg@enberg.com |
