









































































Rivitalo
5h+kAnttoninkatu 7, Lohikoski, Jyväskylä
Hinta
229 000 €
Koko
132 m² / 177 m²
Vuosi
1970
Tilava 4 mh rivitalokoti järvinäkymin – alakerran aputiloineen n. 177 m², Jyväskylän keskustan läheltä
Tervetuloa tutustumaan tähän hyväpohjaiseen rivitaloasuntoon, jossa on runsaasti tilaa ja hyvä pohjaratkaisu isommallekin perheelle. Asuinpinta-alaa on noin 132 m² ja lisäksi sauna- sekä aputiloja noin 45 m². Sijainti on erinomainen – rauhallinen asuinalue vain lyhyen matkan päässä Jyväskylän keskustasta.
Asunto on heti vapaa ja muuttovalmis.
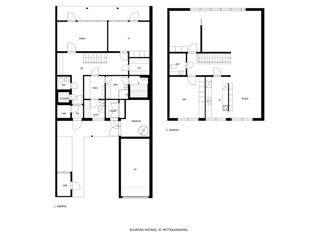
Yläkerrasta löytyy avara ja valoisa olohuone, josta avautuu näkymä Palokkajärvelle. Olohuoneen yhteydessä on makuu-/työ-/vierashuone. Keittiö ja erillinen ruokailutila tarjoavat tilat suuremmallekin ruokaseurueelle. Yläkerrassa on lisäksi päämakuuhuone ja erillinen wc.
Alakerrassa, sisääntulon yhteydessä on tuulikaappi, varasto-/vaatehuonetiloja ja eteisaula, sekä kylmiö. Lisäksi alakerrasta löytyy kaksi tilavaa makuuhuonetta, pukuhuone, kodinhoitotila, kylpyhuone ja sauna sähkökiukaalla.
Kaikkiaan asunnossa on neljä makuuhuonetta.
Asunnon edustalla on harkkoseinäinen autotalli, jossa on kaukokäyttöinen nosto-ovi. Autotallin edessä on toinen autopaikka. Sisääntulossa on pieni viihtyisyyttä tuova viheralue, sekä sekä tilaa vaikkapa polkupyörille.
Tämä koti yhdistää väljyyden, toiminnallisuuden ja rauhallisen sijainnin lähellä kaupungin palveluja – tervetuloa tutustumaan!
Kohdenumero | 21795282 |
---|---|
Sijainti | Anttoninkatu 7, 40250 Jyväskylä |
Omistusmuoto | Oma |
Huoneistoselitelmä | 5h+k |
Huoneita | 5 h |
Hallintamuoto | Asunto-osakeyhtiö |
Tyyppi | Rivitalo (osake) |
Asuintilojen pinta-ala | 132 m² |
Pinta-alojen lisätiedot | Isännöitsijäntodistuksen mukainen pintala: Asuinpinta-ala 132 m², Sauna + aputilat n. 45 m² Autotalli 18 m² Yhteensä n. 195 m². Pinta-aloja ei ole tarkistusmitattu. |
Kerros | 1-2/2 |
Vapautuminen | sopimuksen mukaan |
Kohteen kunto | Tyydyttävä |
Energialuokka | D2007. Lisätietoja energialuokasta: Energiatodistus vanhentunut. |
Rakennusvuosi | 1970 |
Käyttöönottovuosi | 1970 |
Velaton hinta | 229 000 € |
---|---|
Myyntihinta | 229 000 € |
Velkaosuus | - |
Vuokrattu | Ei |
Vastikkeet | |
---|---|
Huoneiston yhtiövastike yht | 479,40 € / kk |
Hoitovastike | 448,80 € / kk |
Muu vastike | 30,60 € / kk |
Lisätietoa vastikkeista | Hoitovastike 3,4 €/m² (asuinpinta-alalta 132 m²). Kohdassa "Muu vastike" on autotallin osuus 1,7 € * 18 m² = 30,60 €. |
Vesimaksu | 18,50 € / kk henkilöluvun mukaan |
---|
Lunastusoikeus osakkailla | 30 päivää |
---|---|
Pihan kuvaus | Takapiha järven suuntaan |
Lämmitysmuodot |
|
Oma sauna | Kyllä |
Antennijärjestelmä | Kaapeli-tv |
Auton säilytys | Jokaisella huoneistolla autotalli. |
Muut säilytystilat |
|
---|---|
Säilytystilojen kuvaus | Sisääntulon vieressä autotalli ja toisella puolella kylmä varastotila. |
Muu varustelu |
|
Katto | |
---|---|
Kate | huopa |
Rakennusmateriaalit | |
---|---|
Käytetyt rakennusmateriaalit |
|
Keittiö | |
---|---|
Keittiön varustelu | Keittiöstä käynti ruokailutilaan |
Keittiön pöydät |
|
Keittiön muu varustelu |
|
Liesi |
|
Jääkaappi ja pakastin |
|
Keittiön lattia |
|
Keittiön seinät |
|
Kylpyhuone | |
---|---|
Kylpyhuoneen kuvaus | Tilava kylpyhuone |
Kylpyhuoneen varustelu |
|
Kylpyhuoneen lattia |
|
Kylpyhuoneen seinät |
|
Sauna | |
---|---|
Kiuas |
|
Saunan lattia |
|
Saunan seinät |
|
Makuuhuone | |
---|---|
4 |
Olohuone | |
---|---|
Olohuoneen lattia |
|
Olohuoneen seinät |
|
Pesutilat | |
---|---|
Pesutilojen lattia |
|
Pesutilojen seinät |
|
WC-tilat | |
---|---|
WC-tilojen kuvaus | Erillinen WC alakerrassa ja yläkerrassa. |
WC-tilojen varustelu |
|
WC-tilojen lattia |
|
WC-tilojen seinät |
|
Koko | 2 815,90 m² |
---|---|
Omistus | Oma |
Kaavoitustilanne |
|
Kaavoitustiedot | kartta.jkl.fi Jyväskylän kaupunki |
Ranta |
|
Nimi | Asunto Oy Jyväskylän Anttoninkatu 7 |
---|---|
Isännöitsijän tiedot | Paavo Tuukkanen |
Huolto | Asukkaat |
Tehdyt remontit | 2020 Vesikattosaneeraus 2017 Ulkomaalaus 2025 Talon ulkopuolella olevat kaukolämpöputket sekä taloon tuleva sähkönsyöttökaapeli uusittu Tarkka listaus saatavissa välittäjältä. |
Tulevat remontit | Ulko-ovet Ikkunat Käyttövesiputket ja lämpöverkko Jätehuoltotila Rakennuksen eristykset Valokuituliittymä Tarkempi selitys/listaus välittäjältä. |
Taloyhtiön autopaikat |
|
Huoneistojen lukumäärä | 7 |
Taloyhtiössä |
|
Esittelyaika | 21.10. 17:00 - 17:30 |
---|---|
Esittelijä | Laurila Mikko |
p. | 0407490982 |
Sähköposti | mikko.laurila@enberg.com |
yleisesittely | |
Lisätietoja | Tervetuloa! |

Nimi | Laurila Mikko |
---|---|
Sähköposti | mikko.laurila@enberg.com |
Puhelin | 0407490982 |
Yrityksen nimi | Kiinteistönvälitys Enberg Oy LKV |
Toimiston nimi | Kiinteistönvälitys Enberg Oy LKV |
Yrityksen nimi | Kiinteistönvälitys Enberg Oy LKV |
---|---|
Toimiston nimi | Kiinteistönvälitys Enberg Oy LKV |
Osoite | Asemakatu 10 B, JYVÄSKYLÄ |
Toimiston puhelin | 0400561272 |
Toimiston sähköposti | enberg@enberg.com |