









































































Omakotitalo
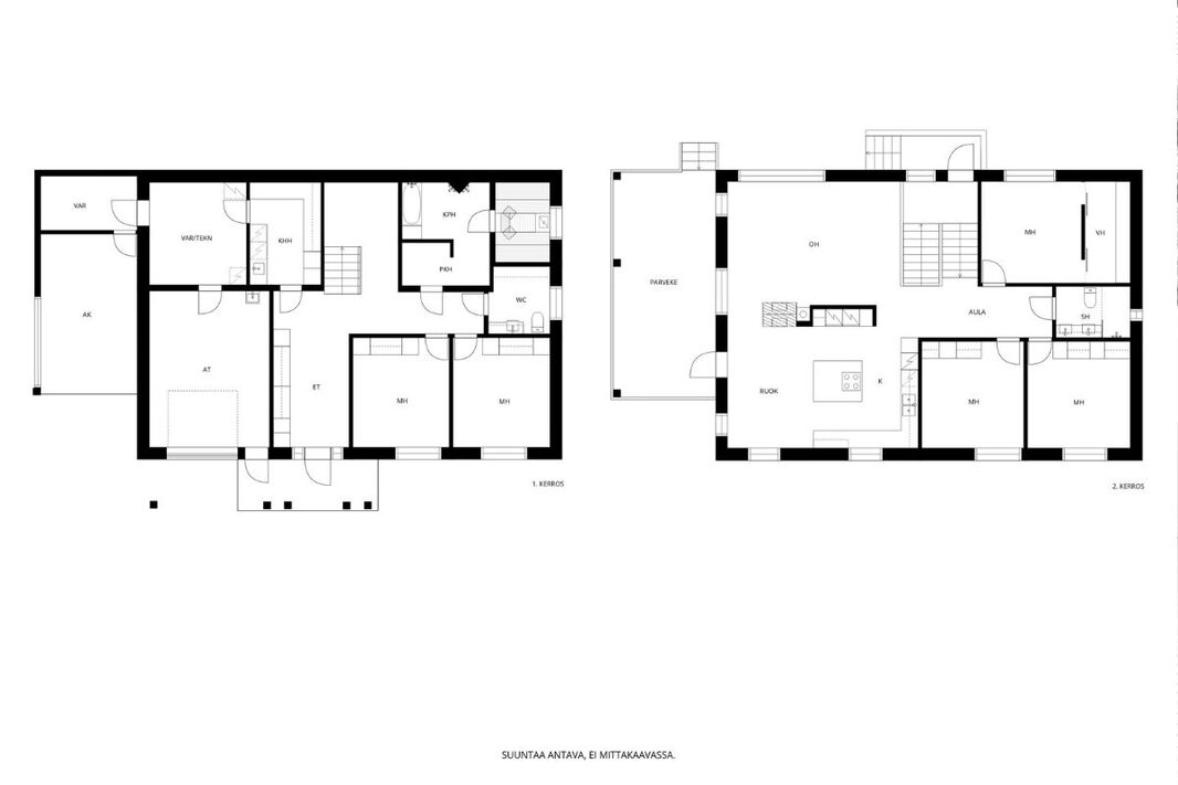
5mh,oh,k,2wc,khh,kh,sauna-osasto,vh,eteinen,tekninen tila,kylmä varasto,autotalliPihtatie 6, Vaajakoski, Jyväskylä
Hinta
445 000 €
Koko
211 m² / 352 m²
Vuosi
2011
Näyttävä kivitalo omalla tontilla Savonmäessä
Tervetuloa tutustumaan tähän vuonna 2011 valmistuneeseen kivitaloon, joka sijaitsee omalla 1266 m² tontilla arvostetulla Savonmäen alueella Vaajakoskella. Koti yhdistää laadukkaat materiaalit, modernin asumismukavuuden ja on kokonaisuudessaan viisaasti suunniteltu ja huolella toteutettu, täydellinen valinta tilaa ja laatua arvostavalle perheelle.
Talo sijoittuu kauniisti rinteeseen, ja tontin yläosassa on tasainen piha-alue, sopiva lasten leikkeihin ja oleskeluun. Kodissa on 211 m² asuintilaa ja maalämpö varmistaa edullisen energiankulutuksen.
Sisääntulosta avautuu vaikuttava aula, joka johtaa olohuoneeseen ja moderniin keittiöön. Kodissa on viisi makuuhuonetta, joten tilaa riittää isommallekin perheelle.
Saunaosasto on suunniteltu rentoutumiseen: kaksi sadesuihkua, tyylikäs sauna ja poreamme tekevät tilasta täydellisen paikan hemmotteluun. Lisäksi kodissa on kaksi wc:tä, joista yläkerran wc:ssä on myös sadesuihku.
Yläkerrassa on lasitettu terassi mukavalle oleskelulle, ja pihapiirissä on avoin terassi. Autotalli ja runsaat varastotilat täydentävät kokonaisuuden.
Savonmäki on rauhallinen ja pidetty asuinalue, jossa koulut, päiväkodit ja palvelut löytyvät läheltä.
Tässä kodissa yhdistyvät laatu, tila ja viihtyisyys, tule paikan päälle tutustumaan ja ihastu!
Kohdenumero | 21921764 |
---|---|
Sijainti | Pihtatie 6, 40800 Jyväskylä |
Huoneistoselitelmä | 5mh,oh,k,2wc,khh,kh,sauna-osasto,vh,eteinen,tekninen tila,kylmä varasto,autotalli |
Huoneita | 6 h ja enemmän |
Tyyppi | Omakotitalo (kiinteistö) |
Asuintilojen pinta-ala | 211 m² |
Kerroksia | 2 |
Vapautuminen | sopimuksen mukaan |
Kohteen kunto | Hyvä |
Energialuokka | Ei lain edellyttämää energiatodistusta |
Asbestikartoitus | Ei |
Rakennusvuosi | 2011 |
Käyttöönottovuosi | 2011 |
Velaton hinta | 445 000 € |
---|---|
Myyntihinta | 445 000 € |
Velkaosuus | - |
Vuokrattu | Kyllä |
Muut maksut/lisätietoa maksuista | |
---|---|
Kiinteistövero | 1307,96 €/vuosi |
Vesi- ja jätevesimaksu | 76 € / kk |
---|---|
Puhtaanapito | 18,75 € / kk |
Pihan kuvaus | robottiruohonleikkuri. |
---|---|
Lämmitys | Hyvä |
Lämmitysmuodot |
|
Oma sauna | Kyllä |
Sähköliittymä siirtyy | Kyllä |
Antennijärjestelmä | Kaapeli-tv |
Kuntotarkistus tehty | Kyllä |
Tehdyt remontit | 2023/2021 alakerran lattiaan vaihdettu laminaatit. 2019 Ilmalämpöpumppu 2018 Terassin lasitus 2012 Pihan kivetys |
Liikenneyhteydet | |
---|---|
Tie perille | Kyllä |
Viemäri |
|
---|---|
Muut säilytystilat |
|
Muu varustelu |
|
Tulisija |
|
Vesihuolto |
|
Katto | |
---|---|
Kate | Tiili |
Katon kunto | Hyvä |
Rakennusmateriaalit | |
---|---|
Käytetyt rakennusmateriaalit |
|
Keittiö | |
---|---|
Keittiön varustelu | Muruimuri |
Keittiön pöydät |
|
Keittiön muu varustelu |
|
Liesi |
|
Jääkaappi ja pakastin |
|
Keittiön lattia |
|
Keittiön seinät |
|
Kylpyhuone | |
---|---|
Kylpyhuoneen varustelu |
|
Kylpyhuoneen lattia |
|
Kylpyhuoneen seinät |
|
Sauna | |
---|---|
Kiuas |
|
Saunan lattia |
|
Saunan seinät |
|
Makuuhuone | |
---|---|
5 | |
Makuuhuoneen lattia |
|
Makuuhuoneen seinät |
|
Olohuone | |
---|---|
Olohuoneen lattia |
|
Olohuoneen seinät |
|
Pesutilat | |
---|---|
Pesutilojen lattia |
|
Pesutilojen seinät |
|
WC-tilat | |
---|---|
WC-tilojen varustelu |
|
WC-tilojen lattia |
|
WC-tilojen seinät |
|
Rakennusoikeus e-luku | 0.25 |
---|---|
Koko | 1 266 m² |
Omistus | Oma |
Kaavoitustilanne |
|
Kiinteistötunnus | 179-69-166-10 |
Rakennukset |
|
Ranta |
|

Nimi | Pesonen Jesse |
---|---|
Sähköposti | jesse.pesonen@enberg.com |
Puhelin | 0456502132 |
Yrityksen nimi | Kiinteistönvälitys Enberg Oy LKV |
Toimiston nimi | Kiinteistönvälitys Enberg Oy LKV |
Yrityksen nimi | Kiinteistönvälitys Enberg Oy LKV |
---|---|
Toimiston nimi | Kiinteistönvälitys Enberg Oy LKV |
Osoite | Asemakatu 10 B, JYVÄSKYLÄ |
Toimiston puhelin | 0400561272 |
Toimiston sähköposti | enberg@enberg.com |